Accessible Housing Proposal Moves Forward in Lincoln Park at 754 W Belden

Accessible Housing Proposal Moves Forward in Lincoln Park at 754 W Belden

Rendering of 754 W Belden Ave by Weese Langley Weese

A new housing proposal in Lincoln Park is drawing attention as it aims to expand accessible living options in one of Chicago’s most established neighborhoods. Updated renderings have been revealed for a planned development at 754 West Belden Avenue, ahead of an upcoming community meeting.

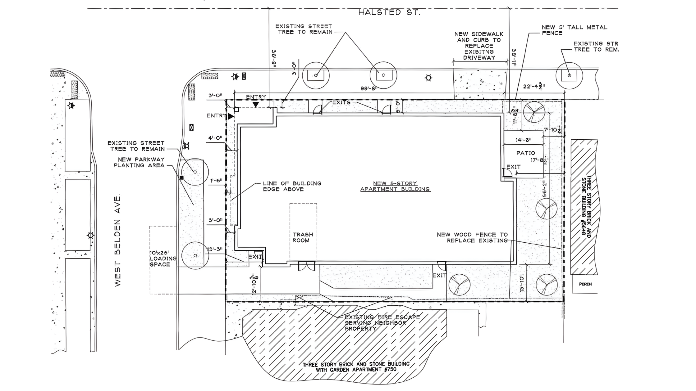
Site plan of 754 W Belden Ave by Weese Langley Weese

The project is being led by Over The Rainbow, a nonprofit focused on providing safe, affordable and accessible housing for adults with physical disabilities. If approved, this would be the organization’s first development in the 43rd Ward, adding to a limited supply of purpose-built accessible housing on the North Side.

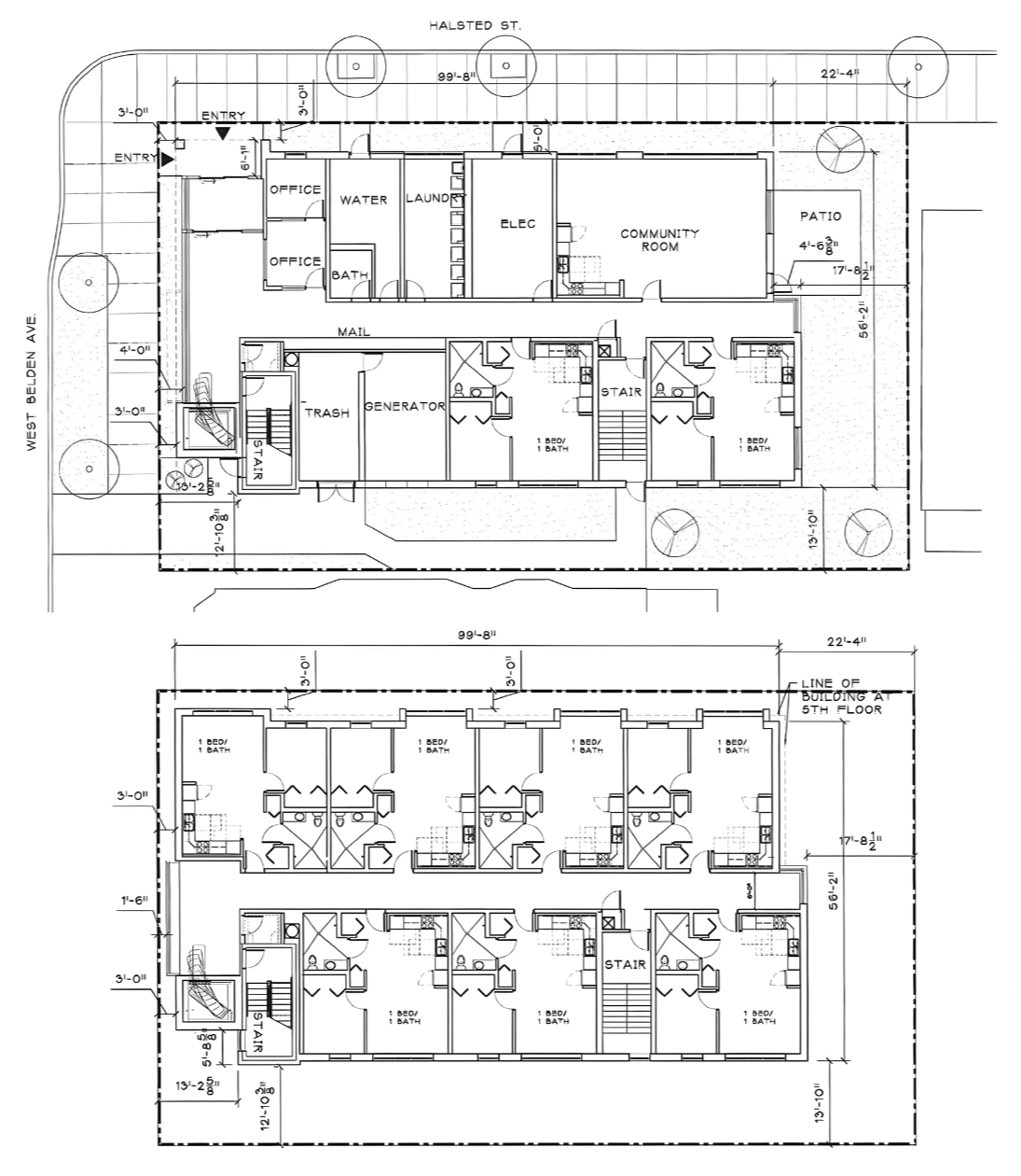
Designed by Weese Langley Weese, the proposal calls for a five-story building with 30 fully accessible residential units, all planned as one-bedroom apartments. Most units are expected to be affordable, aligning with the organization’s mission to serve residents who need both accessibility and financial support.

Floor plans of 754 W Belden Ave by Weese Langley Weese

The building is designed with accessibility at its core. Planned features include barrier-free layouts, roll-in showers, wide turning radii, open floor plans and automatic doors, creating a living environment tailored to mobility needs while maintaining comfort and independence.

The ground floor will include a residential lobby, office space, shared laundry and a community room with an outdoor patio, offering both practical amenities and shared spaces for residents.

Elevation of 754 W Belden Ave by Weese Langley Weese

Elevation of 754 W Belden Ave by Weese Langley Weese

Unlike many new developments, the project will not include on-site parking. Instead, it reflects a more urban, transit-oriented approach, given its location in a highly walkable part of Lincoln Park with access to nearby public transportation.

Architecturally, the building will rise to approximately 58 feet and feature a modern exterior composed of multi-colored metal panels and cement panels, adding a contemporary presence to the block.

For those following affordable and accessible housing in Chicago, this proposal highlights a growing focus on inclusive development that addresses specific community needs, not just overall housing supply.

The project will next require aldermanic approval before advancing through the city’s formal review process. While a construction timeline has not yet been announced, the proposal represents a meaningful step toward expanding accessible housing options in Chicago.

Stay Connected

Ranked among the top 1% of real estate teams in the Chicagoland market, Cory Tanzer and the Cory Tanzer Group are experts in helping buyers and sellers navigate today’s market across Downtown Chicago, the North Shore, and the Western Suburbs. Recognized for their neighborhood expertise in areas such as University Village, University Commons, South Loop, and Pilsen, the team helps clients stay one step ahead by understanding where the Chicago market is headed next.