A New 66-Unit Residential Development Just Got Approved in Chicago’s West Loop

Rendering of 1201 W Kinzie St by Dirk Denison Architects

Another residential project is moving forward in one of Chicago’s most in-demand neighborhoods. The Chicago Plan Commission has approved a new development at 1201 West Kinzie Street in the West Loop, signaling continued growth and investment in the area.

Rendering of 1201 W Kinzie St by Dirk Denison Architects

Site context model of 1201 W Kinzie St by Dirk Denison Architects

The project, led by LG Group in partnership with Dirk Denison Architects, will replace a vacant lot at the corner of North Racine Avenue. The site sits near Metra tracks and continues the trend of transforming underutilized land into residential housing in the West Loop.

Rendering of 1201 W Kinzie St by Dirk Denison Architects

Unlike many nearby high-rise developments, the proposal takes a different approach with a five-story building rising to about 71 feet. The design will feature a mix of glazed green brick, bronze accents and modern detailing, giving the project a distinct architectural identity within the neighborhood.

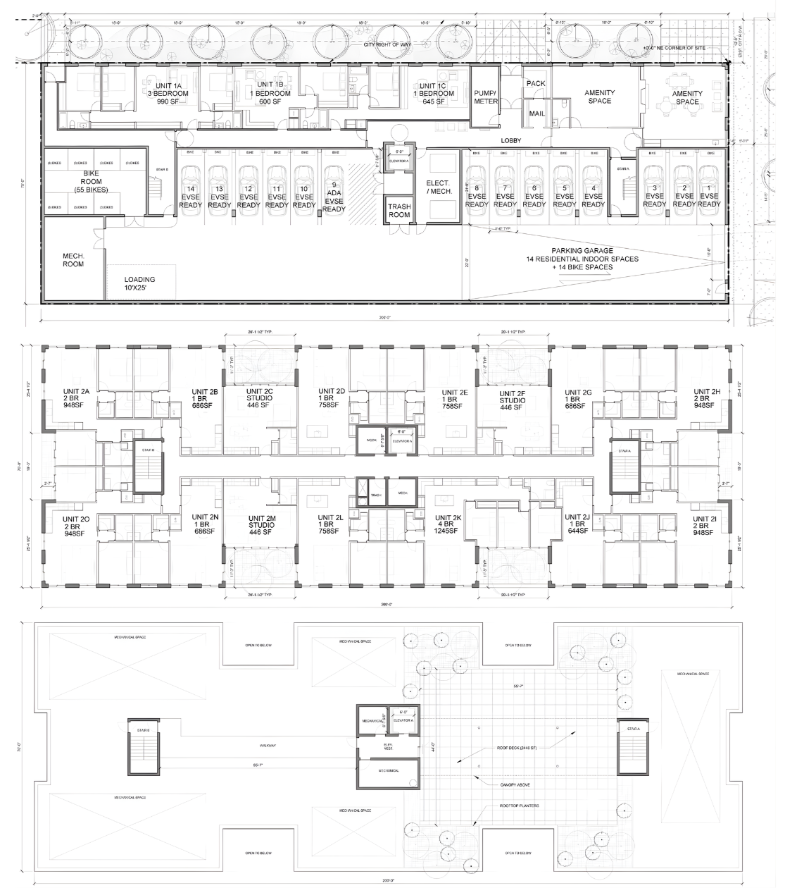
Floor plans of 1201 W Kinzie St by Dirk Denison Architects

The development will include 66 residential units, ranging from studios to four-bedroom layouts, offering options for a wide range of renters. About 15% of the units will be designated as affordable housing, tied to the inclusion of larger, family-sized apartments within the building.

Rendering of 1201 W Kinzie St by Dirk Denison Architects

Inside, the ground floor will include a residential lobby, amenity spaces and street-facing units, along with a 14-car parking garage accessed from Racine Avenue. Upper floors will house the remaining units, while design elements such as inset garden spaces and Juliet balconies aim to bring in more natural light and outdoor access.

Residents will also have access to a rooftop deck, adding to the growing list of lifestyle amenities that continue to define new developments in the West Loop.

Elevations of 1201 W Kinzie St by Dirk Denison Architects

For those searching for new developments in West Loop Chicago, this project highlights the ongoing demand for housing in the area, especially projects that balance modern design with more moderate building heights.

The $25 million proposal will now move to City Council for final approval. If approved, construction is expected to begin in late 2026, with completion targeted for mid-2028, adding more residential options to one of Chicago’s fastest-growing neighborhoods.

Stay Connected

Ranked among the top 1% of real estate teams in the Chicagoland market, Cory Tanzer and the Cory Tanzer Group are experts in helping buyers and sellers navigate today’s market across Downtown Chicago, the North Shore, and the Western Suburbs. Recognized for their neighborhood expertise in areas such as University Village, University Commons, South Loop, and Pilsen, the team helps clients stay one step ahead by understanding where the Chicago market is headed next.