Permit Issued for Mixed-Use Development at 2006 S Blue Island in Pilsen

2006 S. Blue Island by Hanna Architects

A new residential and retail project is moving forward in one of Chicago’s most active neighborhoods. A full building permit has been issued for a mixed-use development at 2006 S Blue Island Avenue in Pilsen, clearing the way for construction to begin.

The project, led by Fox Pilsen 4 LLC, will rise on a currently vacant, irregularly shaped lot at the corner of South Blue Island Avenue and West Cullerton Street. The site has remained underutilized, and this development represents another step in the continued growth and reinvestment happening across Pilsen.

2006 S. Blue Island by Hanna Architects

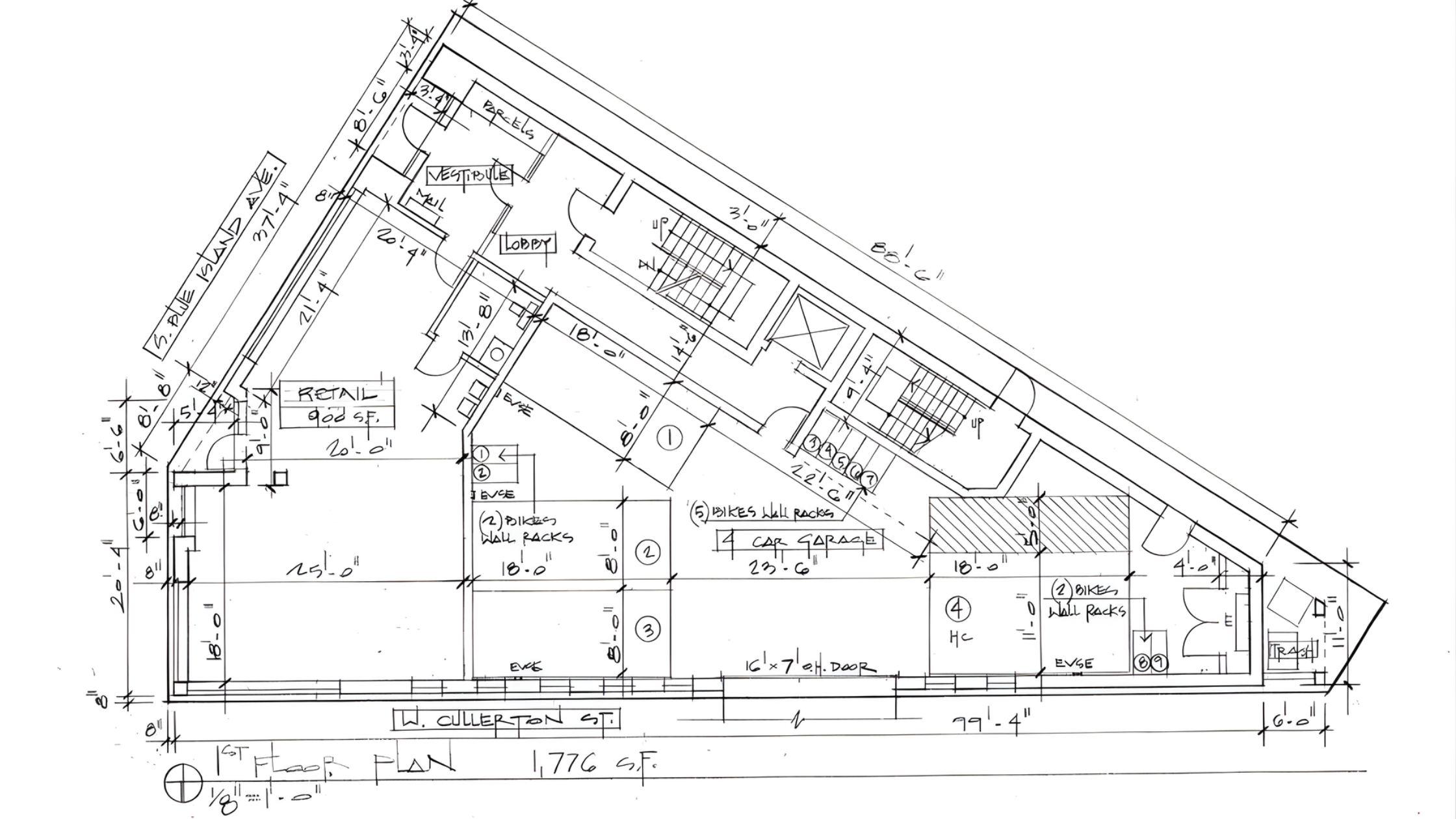
Designed by Hanna Architects, the proposal calls for a four-story mixed-use building featuring nine residential units and 900 square feet of ground-floor retail space. The retail component will occupy the corner frontage, helping activate the street level and contribute to the neighborhood’s walkable character.

2006 S Blue Island in Pilsen

2006 S. Blue Island by Hanna Architects

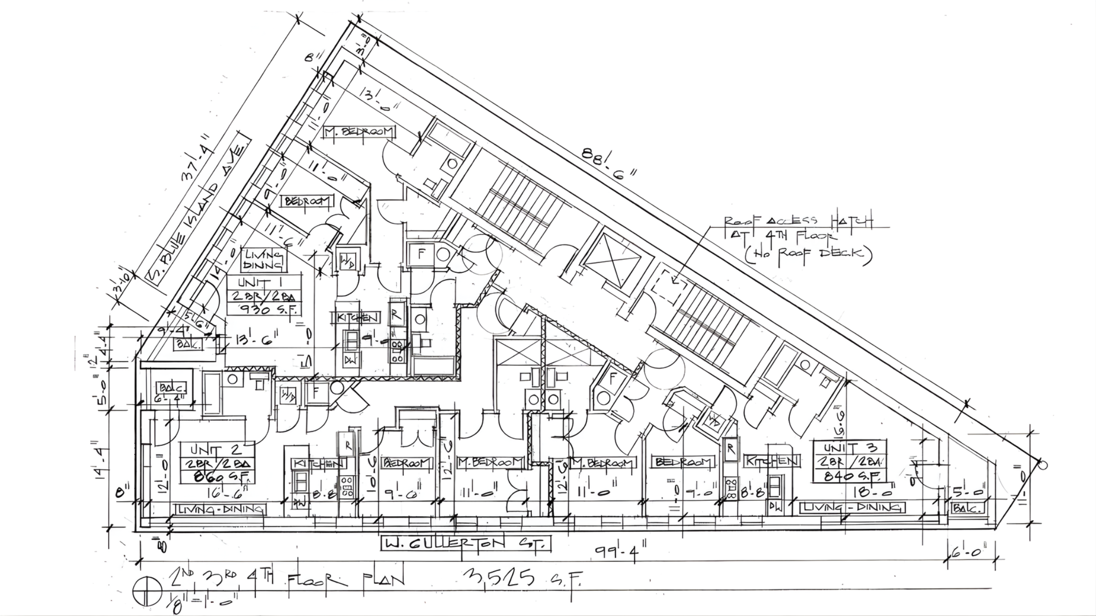
The residential portion will include three units per floor across the upper levels, with all apartments designed as two-bedroom layouts. Each unit is also expected to include a private balcony, adding outdoor space for future residents.

2006 S Blue Island in Pilsen

2006 S. Blue Island by Hanna Architects

Parking will be limited, with four vehicle spaces and nine bike parking spots located within an interior garage accessed from West Cullerton Street. This reflects a broader trend in urban developments that prioritize walkability and transit access over large parking ratios, particularly in neighborhoods like Pilsen where many residents rely on public transportation.

2006 S Blue Island in Pilsen

2006 S. Blue Island by Hanna Architects

The project previously received approval from the city’s zoning board, including several variations related to setbacks, parking and commercial space requirements. These adjustments helped make the development feasible while maintaining its overall design and function.

With the full building permit now in place, FGAC Construction LLC is expected to begin construction. While an official timeline has not yet been announced, the approval signals that the project is ready to move forward.

For those watching new developments in Pilsen Chicago, this project highlights a continued shift toward smaller-scale mixed-use buildings that add both housing and retail to established neighborhoods. As demand remains strong, developments like this are helping shape the next phase of growth in Pilsen while maintaining its local character.

Stay Connected

Ranked among the top 1% of real estate teams in the Chicagoland market, Cory Tanzer and the Cory Tanzer Group are experts in helping buyers and sellers navigate today’s market across Downtown Chicago, the North Shore, and the Western Suburbs. Recognized for their neighborhood expertise in areas such as University Village, University Commons, South Loop, and Pilsen, the team helps clients stay one step ahead by understanding where the Chicago market is headed next.